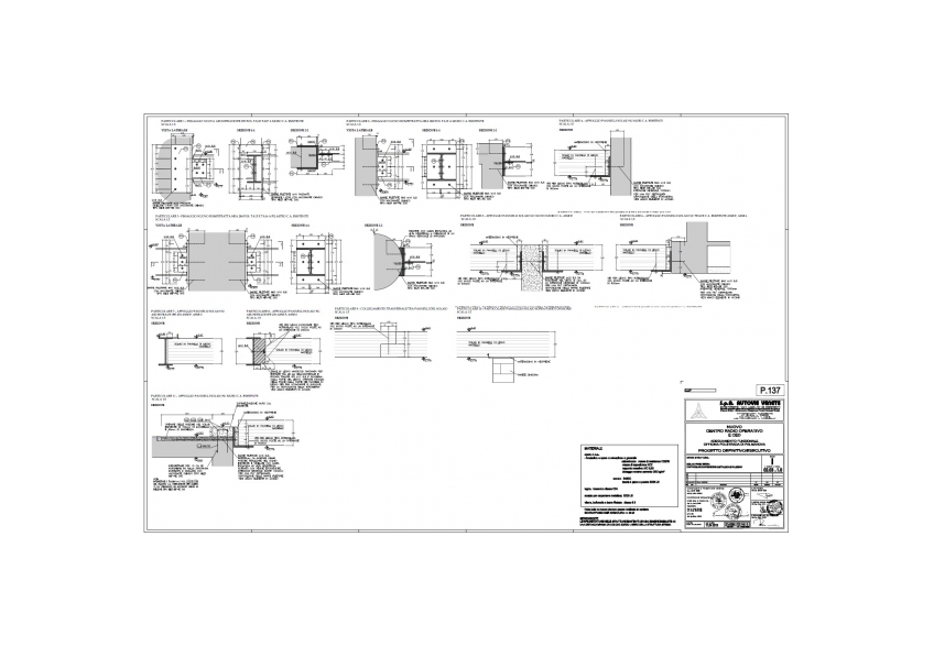
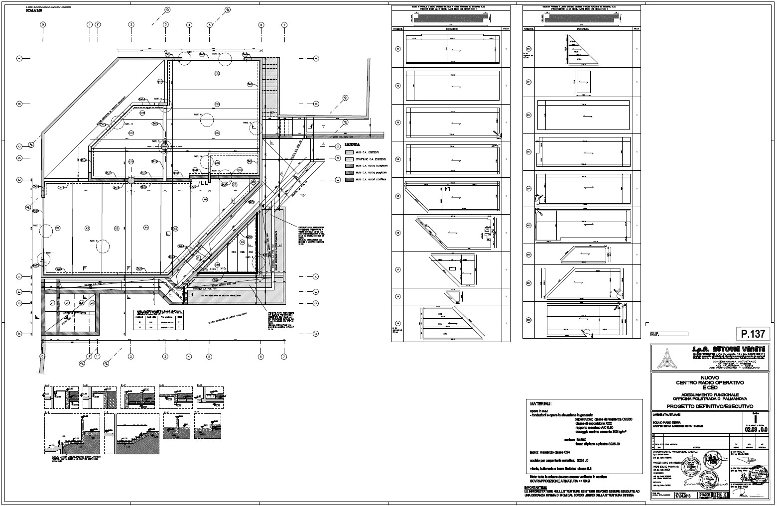
Novi kontrolni center za avtocesto A4: rekonstrukcija, adaptacija in sprememba namembnosti mehanične delavnice Polstrada Palmanova
Kraj gradnje: Palmanova, Italija
Obdobje projektiranja: 2013
Investitor: Autovie venete S.p.a.
Investicija za izvedbo gradbenih konstrukcij: €. 400.000.-
Nosilna konstrukcija: AB konstrukcije., jeklo in les (križnolepljene lesene plošče)
Opravljena storitev: načrt gradbenih konstrukcij pri fazi PGD in PZI


