Kraj gradnje: Lendava, Slovenija
Obdobje projektiranja: 2019
Naročnik: LEK d.d., Slovenija
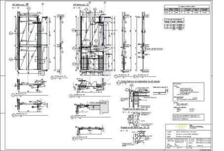
Nosilna konstrukcija: AB konstrukcija, Jeklena konstrukcija
Opravljena storitev: načrt gradbenih konstrukcij v fazi DGD, PZI
Način projektiranja: BIM proces z uporabo Autodesk Revit-a




