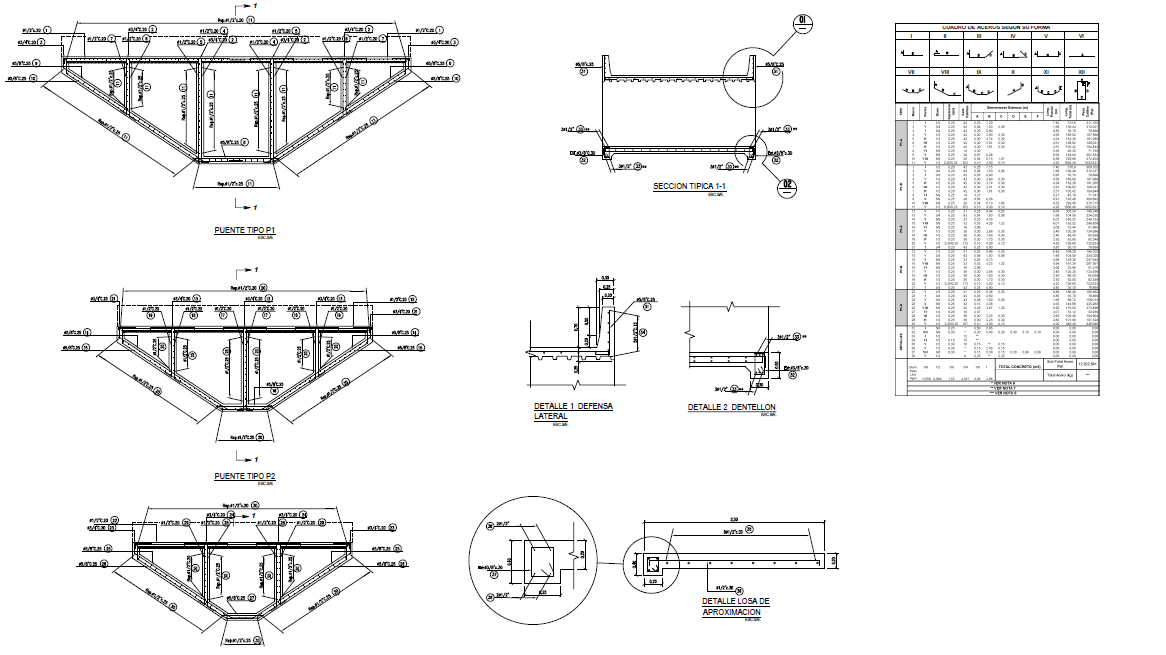
Armiranobetonski mostovi preko reke Rio Tiznados v Venezueli
Projekti
Armiranobetonski mostovi preko reke Rio Tiznados v Venezueli
Nizke gradnje
Kraj gradnje: Venezuela Leto gradnje: 2007 Naročnik: SNC Lavalin – International Nosilna konstrukcija: AB stene in plošče Opravljena storitev: sprememba konstrukcijskega sistema plošče in izris PZI armaturnih načrtov.