EEP d.o.o. | Partizanska 70 | SI - 6210 Sežana | Slovenia

European engineering project

Projects

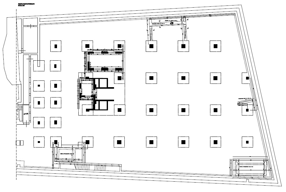
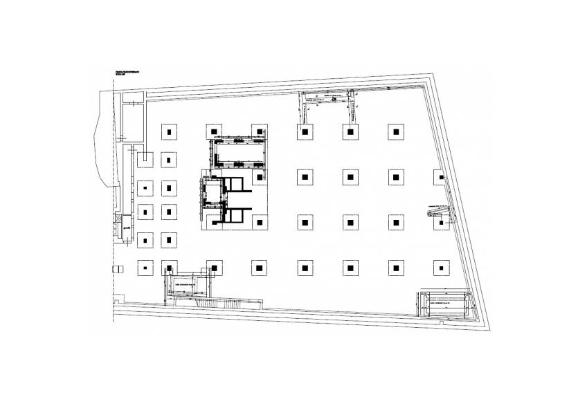
Reconstruction of a commercial and residential building in Trieste

Commercial and residential buildings

Location: Trieste, Italy
Year of construction: 2011
Investor: Aspiag Service S.r.l.
Investment in structural work: €. 250.000 -
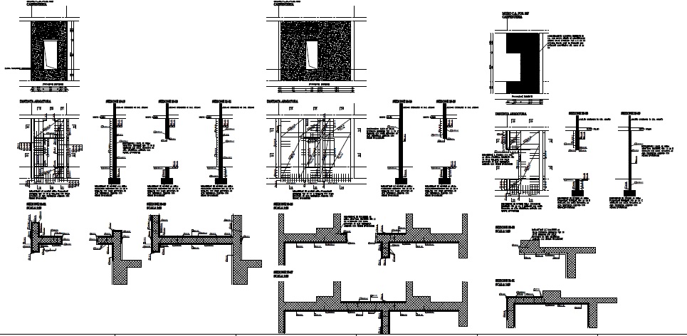
Load-bearing structure: AB nosilni elementi, Jeklena konstrukcija
Service performed: Construction Plan in the Design for Building Permit (PGD) and Design for Execution (PZI) project stages.