Location: Trieste, Italy
Time of design: 2012
Investor: Private investor
Investment in structural work: € 300.000
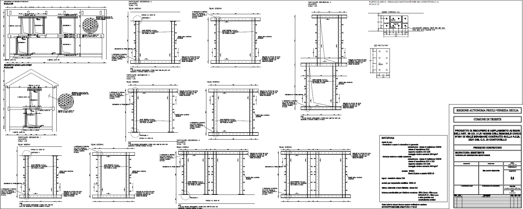
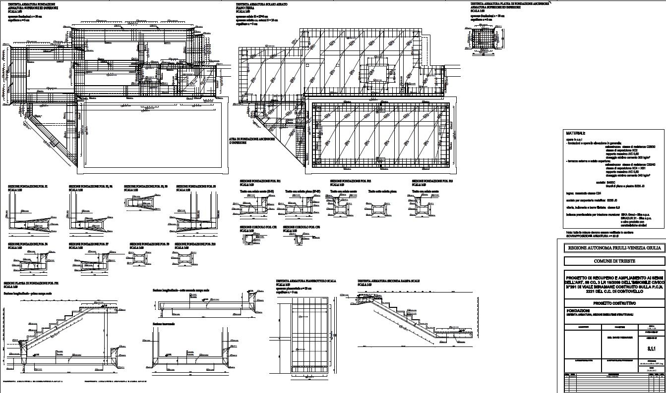
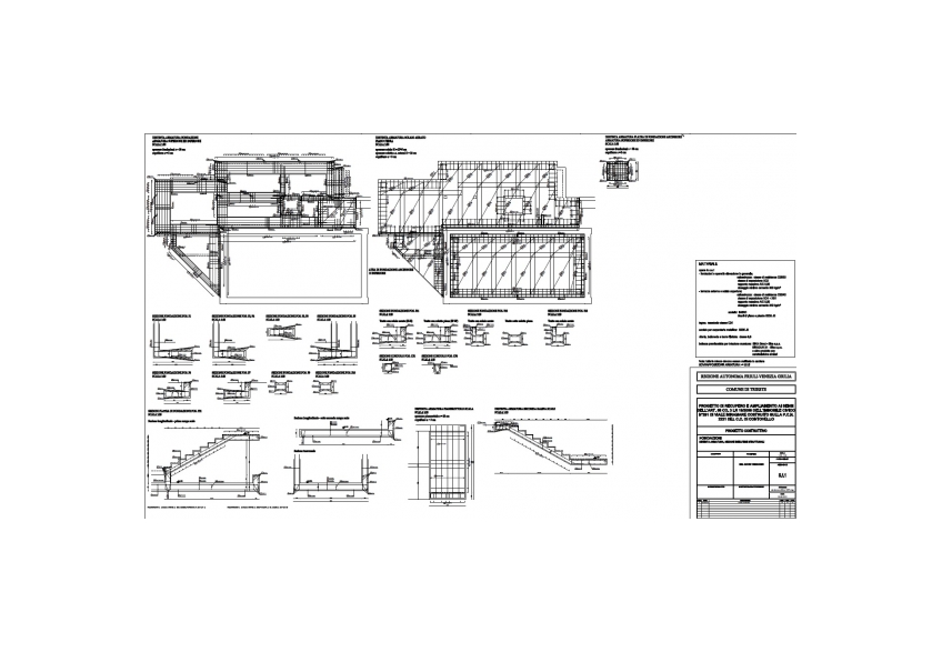
Load-bearing structure: RC and steel structure
Service performed: Construction Plan in the Design for Building Permit (PGD) and Design for Execution (PZI) project stages






