EEP d.o.o. | Partizanska 70 | SI - 6210 Sežana | Slovenia

European engineering project

Projects

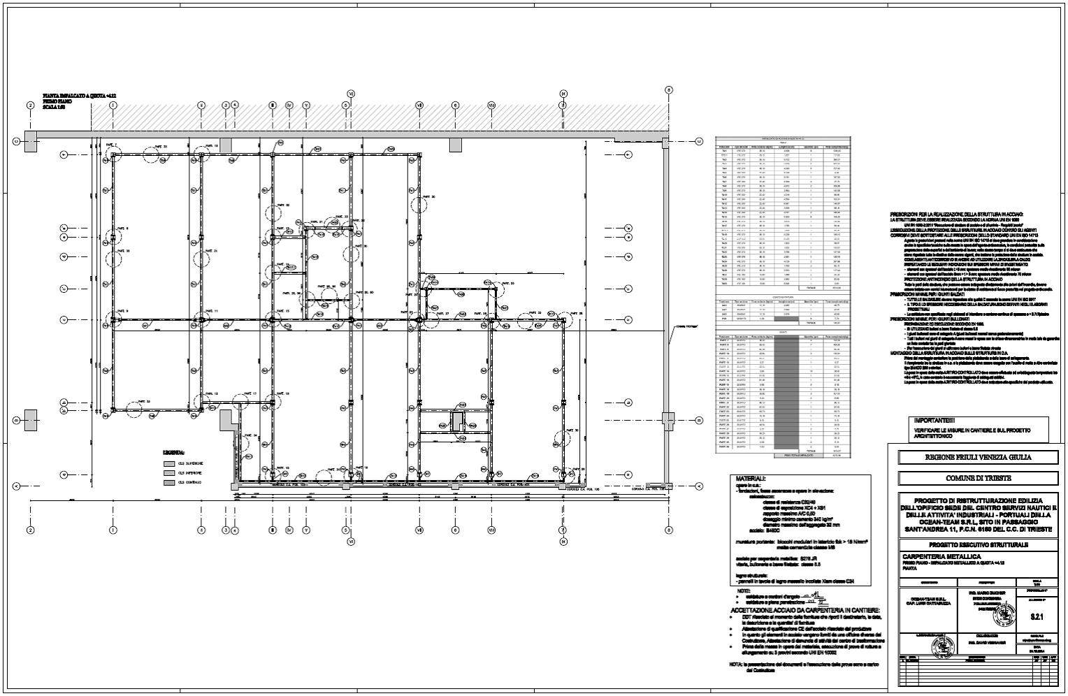
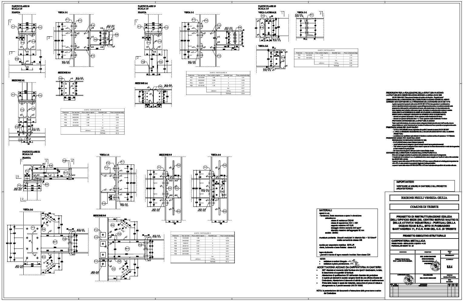
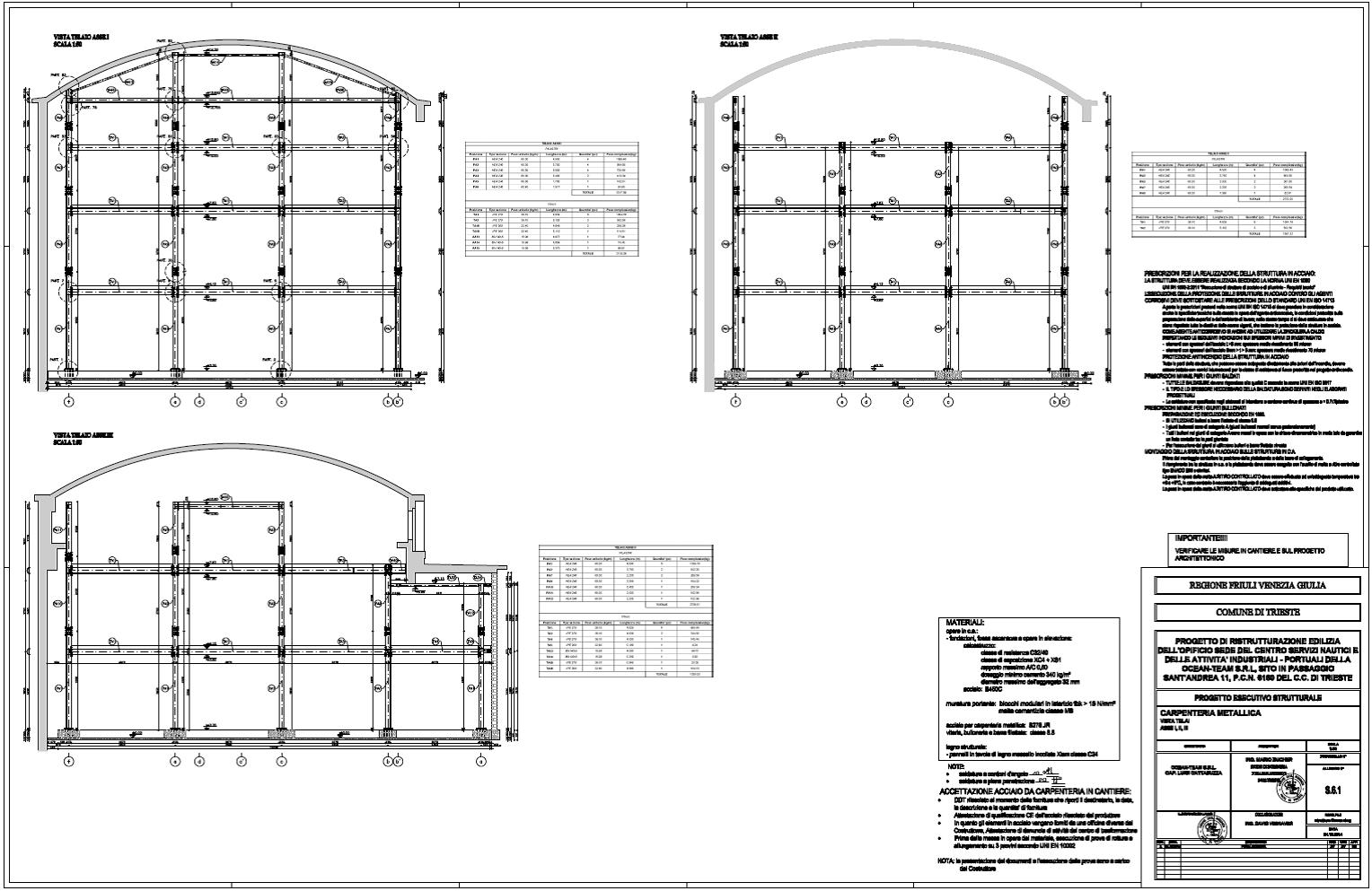
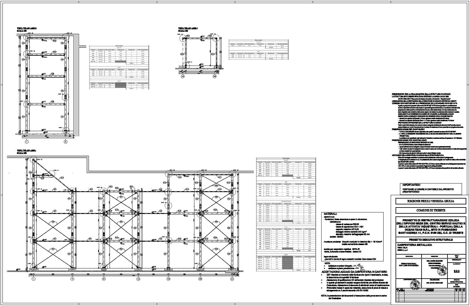
New construction of a multi-storey commercial building as part of Trieste's new port

Commercial and residential buildings

Location: Trieste, Italy
Time of design: 2014
Investor: Private investor
Investment in structural work: € 430.000
Load-bearing structure: AB elementi, jeklo in les
Service performed: Construction Plan in the Design for Building Permit (PGD) and Design for Execution (PZI) project stages