Location: Kočevje, Slovenia
Time of design: 2016
Investor: Municipality of Kočevje
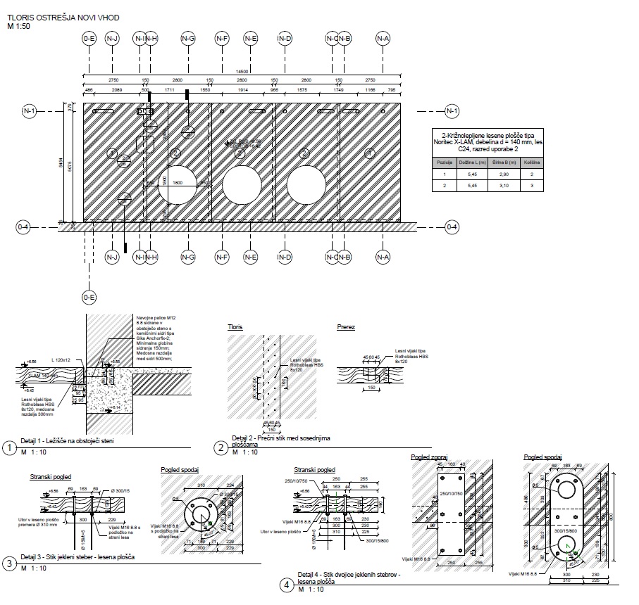
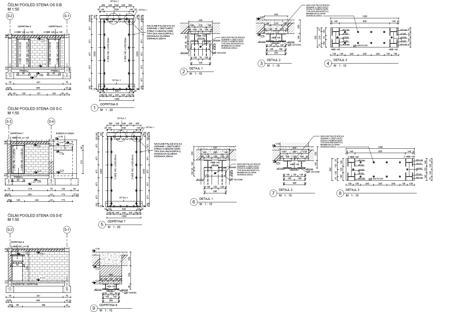
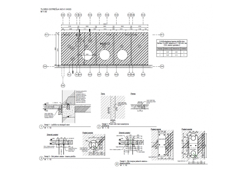
Load-bearing structure: RC structure, steel, wood (CLT panels)
Service performed: Construction Plan in the Design for Building Permit (PGD) and Design for Execution (PZI) project stages
Engineering methodology used: BIM with Autodesk Revit






