Location: Ljubljana
Time of design: 2020
Investor: Private investor
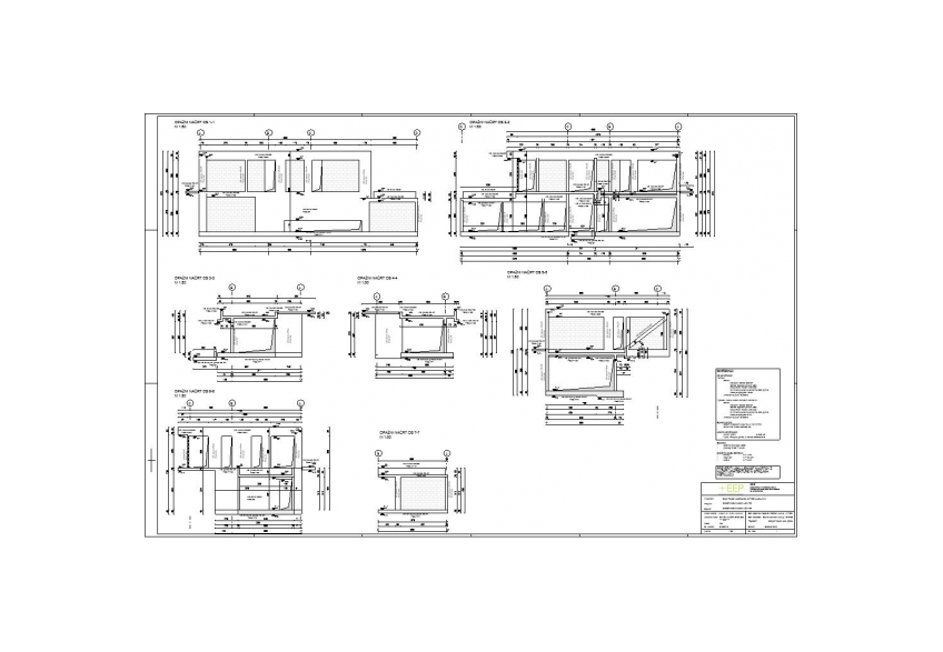
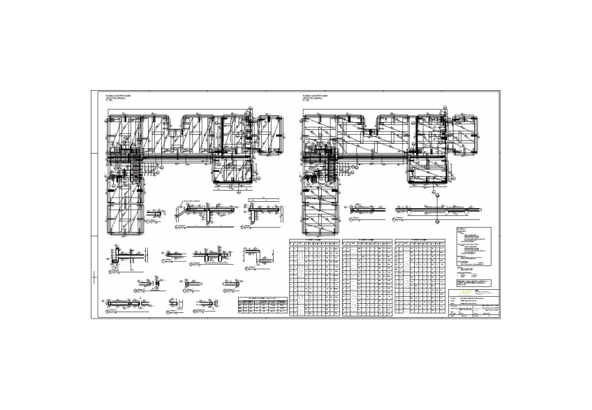
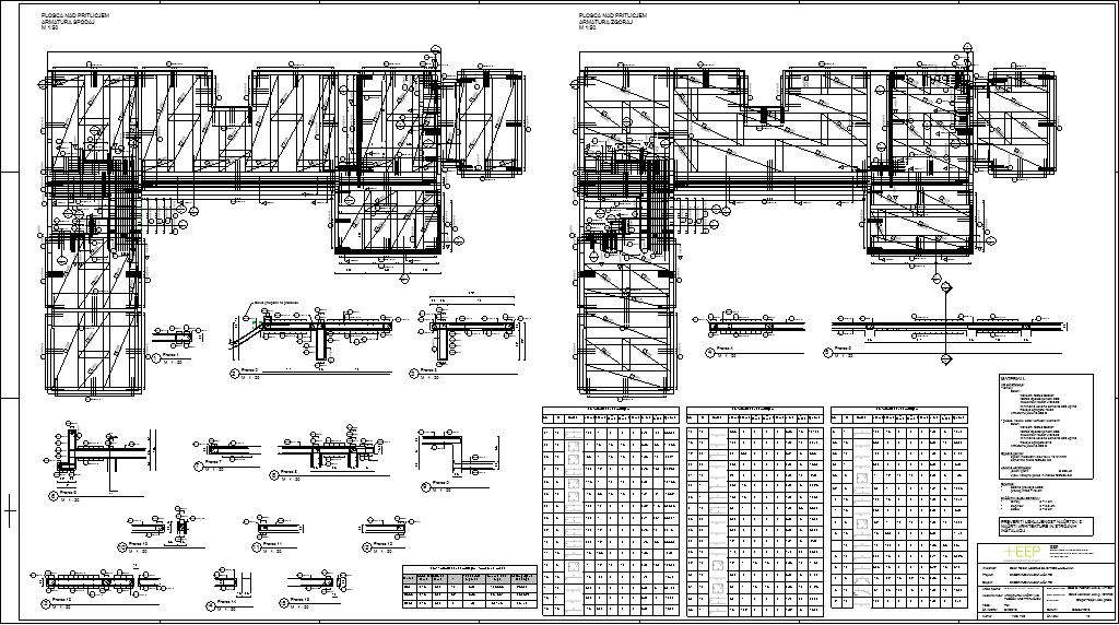
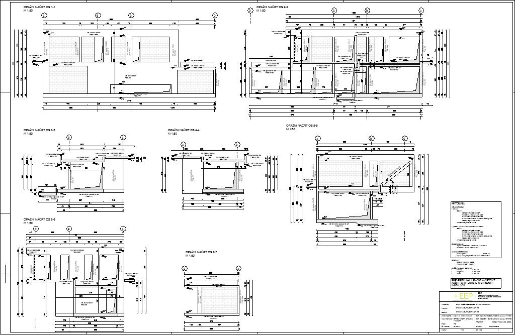
Load-bearing structure: RC frame
Service performed: Construction Plan in the Design for Building Permit (PGD) and Design for Execution (PZI) project stages
Engineering methodology used: BIM with Autodesk Revit






