Location: Ljubljana, Slovenia
Designing period : 2018
Investor: Private
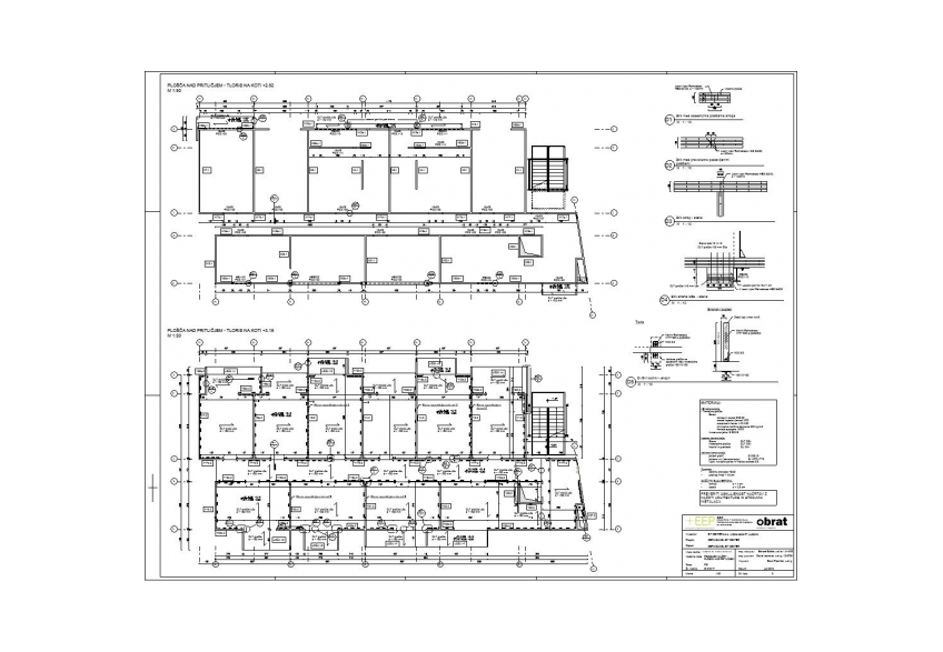
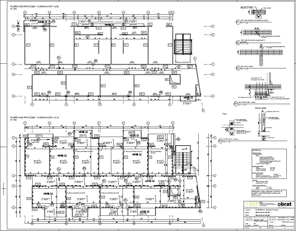
Load-bearing structure: RC, steel structures, timber structures (joists and CLT)
Service performed: Construction Plan in the Design for Building Permit (PGD), Design for Execution (PZI) and PID project stages
Engineering methodology used: BIM with Autodesk Revit







